Construction Document Set
NexgenCAD - CONSTRUCTION DRAWING SET
DETAILED CONSTRUCTION DOCUMENT SETS: ENSURING CLARITY AND PRECISION FOR SEAMLESS PROJECT EXECUTION
We convey compositional development drawings, which are far reaching texts and graphical documentation that exactly send the information expected to complete a structure project. Planners, architects, workers for hire, and other development process partners can speak with one another utilizing these drawings. We, as an engineering development administrations supplier, do create drawings utilizing pc helped plan (computer aided design) programming, and advancement in bim programming has additionally upgraded the practical dexterity and reconciliation of development data.
Site Plan:
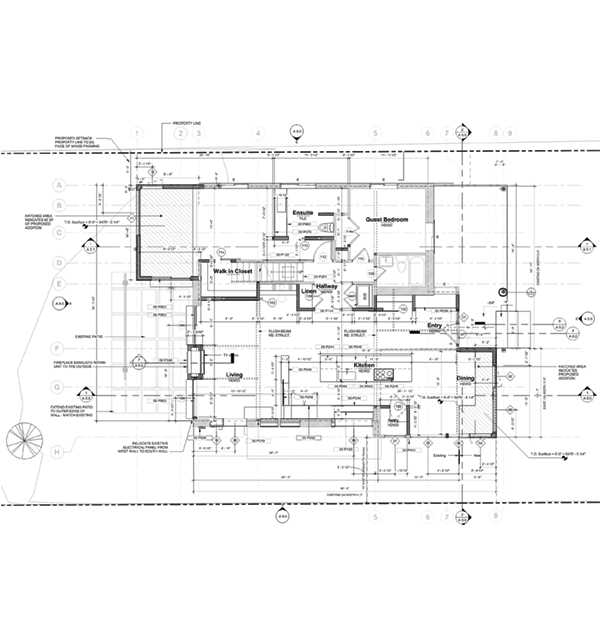
Floor Plans:
Elevations:
Sections:
Details:
Elevations:
Structural Drawings:
Mechanical, Electrical, and Plumbing (MEP) Drawings:
Interior Elevations:
Reflected Ceiling Plans (RCP):
Landscaping Plans:
Fire Protection and Life Safety Drawings:
We exhibit fire security subtleties, like fire dousers, sprinkler frameworks, and leave ways, to ensure our development records for designers conform to the wellbeing code.
Our structural drafting and documentation drawings present a total arrangement of bearings for project workers and manufacturers, teaching them through the development strategy. We are typically adding details, composed notes, and other undertaking documentation to guarantee lucidity and exactness.
We broaden BIM building administrations and inside plan support administrations to structural plan and arranging firms, inside originators, and specialists, utilizing our aptitude in inside 3D demonstrating and delivering arrangements. Our BIM administrations incorporate our 3D demonstrating and delivering administrations, including total 3D computer aided design displaying of structures (completely outfitted inside, outside, and scene).
For more data on our Engineering, Development, and Drawing administrations, keep in touch with us at info@nexgencad.com
Get In Touch
Our business thrives on the exceptional feedback we consistently receive from our valued customers. They frequently highlight our unwavering professionalism, unmatched expertise, and dedication to exceeding expectations. These glowing testimonials reflect our relentless commitment to delivering top-tier service and remarkable results for every project we take on. With a reputation for excellence, we go above and beyond to ensure every client experience is outstanding.
