MEP Shop Drawing
nexgencad is a specialist in building a unique stage for smooth development coordination and representation through bim administrations that join development and accuracy.
MEP SHOP DRAWING SERVICES EXPERT MEP SHOP DRAWINGS: PRECISE PLANS FOR ACCURATE IMPLEMENTATION AND SMOOTH PROJECT COMPLETION.
nexgencad is a mep shop drawing specialist organization, where capability in mep (mechanical, electrical, and plumbing) shop drawings is joined with exactness. in our bim mep shop drawing administrations, our demanding meticulousness and exact drawings exhibit our commitment to quality, which makes us a dependable mep shop attracting accomplice the designing and development areas. our specialization lies in giving full mep coordination shop attracting administrations tweaked to our client’s particular prerequisites. we have insight with mechanical establishments, electrical gear courses of action, and plumbing frameworks. with state of the art innovation and an accomplished staff, we ensure that our mep shop drawing and drafting administrations assist with guaranteeing the smooth coordination and viable establishment of mep frameworks.
there are various benefits that our mep detail shop drawings give to building projects. they empower the coordination of many exchanges by going about as a blueprint for precise establishment. our mep designs are known for their regard for construction regulations as well as industry guidelines, which ensures both productivity and consistence with lawful prerequisites.
As a mep shop drawing trained professional, guaranteeing quality is the essential focal point of our exercises. we send severe checks and blunders to ensure the exactness and dependability of our mep creation and establishment shop drawings. the obligation to precision brings about establishments that are liberated from mistakes, less requirement for revamp, and in the end fruitful task culmination. our group of experts utilizes progressed computer aided design programming and instruments to change over plan ideas into exact and valuable mep shop drawings. each individual from our staff contributes a large number of gifts and mastery, ensuring that each drawing we make fulfills the most noteworthy industry necessities.
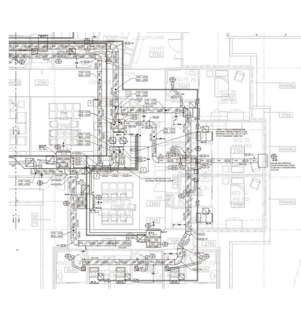
MECHANICAL SHOP DRAWINGS
mechanical central air (warming, ventilation, and cooling) shop drawings are full documentation that incorporates specific insights about the air conditioning frameworks engaged with a structure. the development and establishment of air conditioning parts require the utilization of a mechanical shop drawing plan. coming up next are focuses considered in mechanical air conditioning shop drawings:
• mechanical legends and images
• ventilation work formats
• layered data
• gear position
• air circulation
• ventilation frameworks
• channeling outlines
• protection subtleties
• wind stream outlines
• gear timetables
• exhaust frameworks
• coordination with different exchanges
• notes and comments
• subtleties
ELECTRICAL SHOP DRAWINGS
electrical shop drawings are far reaching records that offer specific data on the electrical frameworks in a structure project. electrical gear creation and establishment rely intensely upon these drawings. electrical shop drawings need to incorporate the accompanying things:
• electrical legends and images
• lighting plans
• layered data
• power dispersion formats
• electrical one-line graph
• electrical hardware position
• board plans
• outlet and repository areas
• lighting control designs
• hardware plans
• crisis and leave lighting
• subtleties
• course and link plate formats
• coordination with different exchanges
• notes and explanations
• subtleties
Plumbing Shop Drawings
plumbing shop drawings are far reaching records that offer specific subtleties on the pipes frameworks engaged with a structure project. the manufacture and establishment of plumbing hardware rely upon these drawings. coming up next are things that should be added to plumbing shop drawings:
- plumbing legends and images
- layered data
- funneling designs
- plumbing installation areas
- waste and venting frameworks
- water supply frameworks
- pipe timetables
- isometric drawings
- coordination with different exchanges
- pipe material and protection subtleties
- boiling water framework designs
- installation timetables
- coordination with mechanical and electrical frameworks
- notes and explanations
- details
hold hands with us and experience firsthand the effect exact and organized mep shop drawings can have on your structure projects. we, the mep shop drawing arrangement supplier, are focused on giving exact and proficient help to your vision, from origination to execution.
reach out for more data on our mep configuration administrations. keep in touch with us at info@nexgencad.com
Advantages of using our outsourcing Architecture 3d modeling services
- A reasonable option for our interior demonstrating groups.
- Admittance to explicit information and capability in 3D demonstrating.
- Versatility to meet the changing requirements and requests of a task.
- Focus on your critical abilities while rethinking specialized work.
- Speedier task consummation time spans with particular staff.
- Use of state of the art equipment and programming.
- Decrease of the perils welcomed on by an absence of abilities and obsolete innovations.
- Better visuals than further develop promoting efforts and client introductions.
Assuming you would like extra data about our Engineering 3D displaying administrations, send us an email at info@nexgencad.com with your requirements for the plan.
Get In Touch
Our business thrives on the exceptional feedback we consistently receive from our valued customers. They frequently highlight our unwavering professionalism, unmatched expertise, and dedication to exceeding expectations. These glowing testimonials reflect our relentless commitment to delivering top-tier service and remarkable results for every project we take on. With a reputation for excellence, we go above and beyond to ensure every client experience is outstanding.
